Loading...
PVP Square Mall
MG Road, Vijayawada – 520010
Monday–Sunday:
10:00am–10:00pm
Home
Brands
Events
Offers
Food Court
Services
Floor Plan
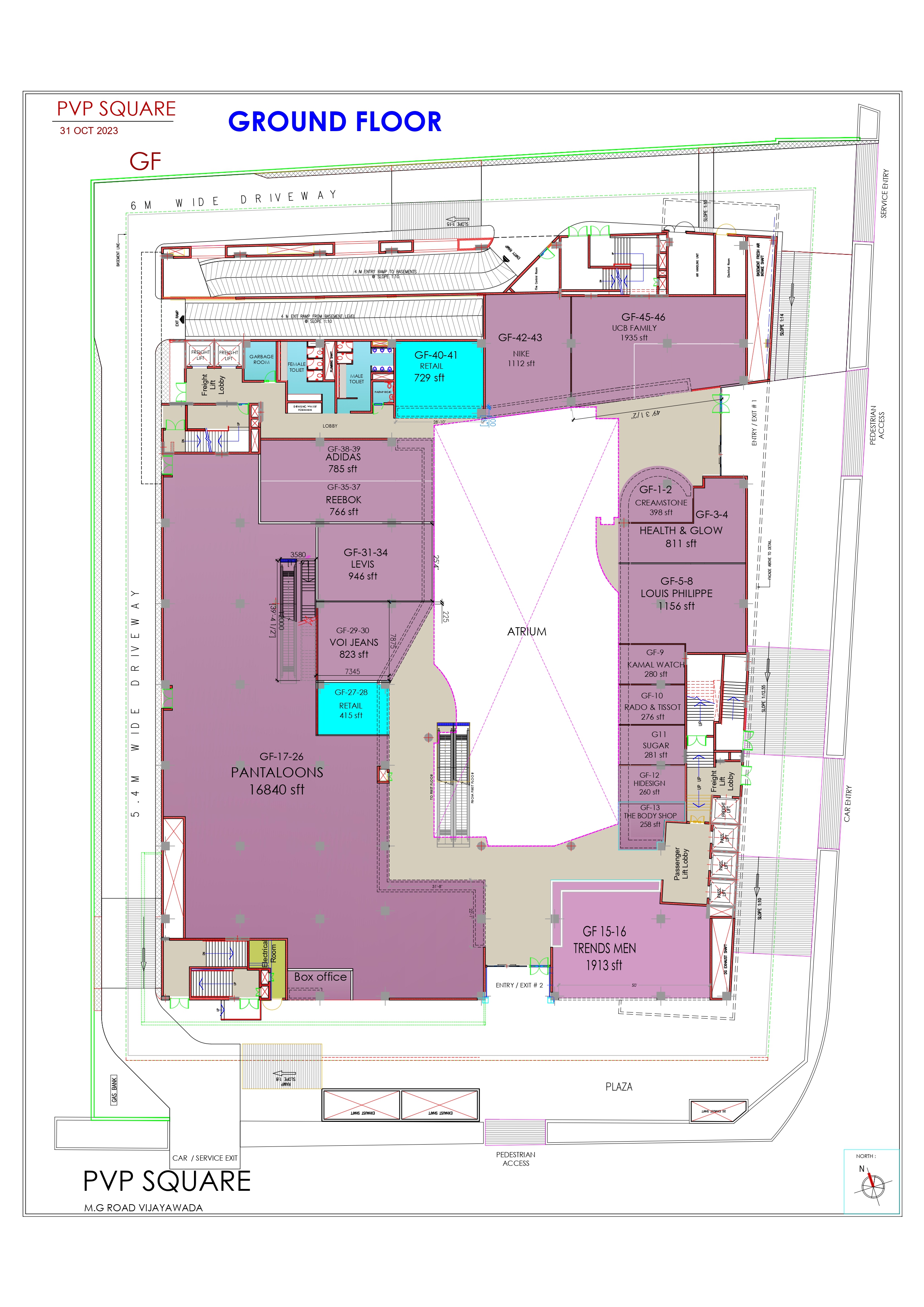
Ground Floor
First Floor
Second Floor
Third Floor
Fourth Floor
Fifth Floor
Lease & Promotion
Search
Ground Floor
Home
Ground Floor